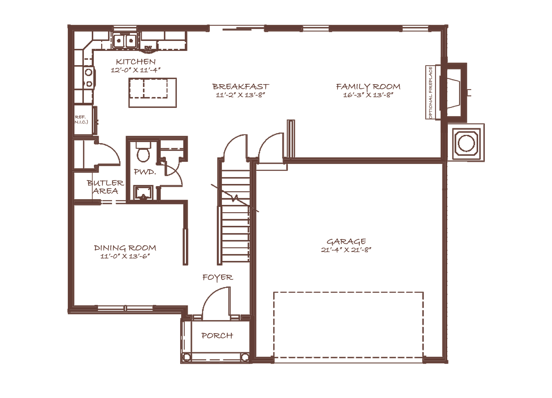
The Lewis


The Lewis features a two car front entry garage, Open Floor Plan, 4 Bedrooms, 2.5 Baths, a spacious Family Room, Kitchen with Breakfast Area, a Flex Room, and with 2,030 sq ft. of living space.

The Lewis

  • Model Type: 2-Story
  • Square Footage: 2,030
  • Beds: 4
  • Baths: 2.5
  • Garage: 2 Car

Elevation

First Floor Plan

Second Floor Plan

Ready to Build your New Home Now?

Get started today by completing our customize your home form