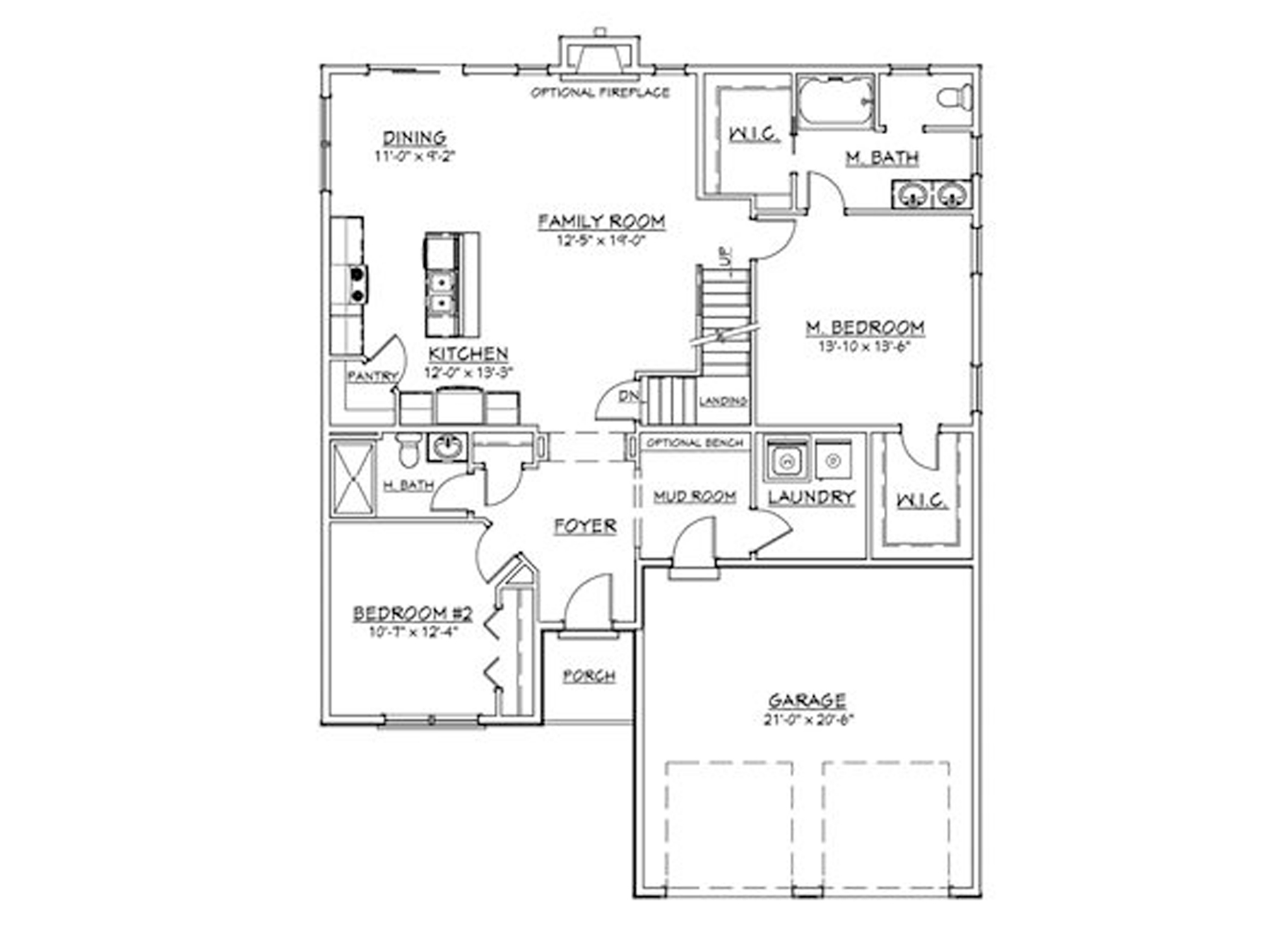
The Gunther


The Gunther features a two car front entry garage, 4 Bedrooms, 3 Baths, a Open Floor Plan, First Floor Master, Spacious Living Room, Kitchen with Pantry and with 2,275 sq ft. of living space.

The Gunther

  • Model Type: 2-Story
  • Square Footage: 2,275
  • Beds: 4
  • Baths: 3
  • Garage: 2 Car

Elevation

First Floor Plan

Second Floor Plan

Ready to Build your New Home Now?

Get started today by completing our customize your home form